

This picture of Kay O’Toole’s house taken from the architect’s web site shows the skylight and the design on the wooden floors – both elements that are found on the above floor plan.

A charming French house found in Provence.
I have long been obsessed with enfilades – especially French ones found in the southern region of that country. What exactly does enfilade mean when used in architecture? Simply, an enfilade is a building where the interior doors are aligned with connecting rooms along a single axis. When the doors are all lined up – you can see from one end of the house to the other. The history of the enfilade is a long one. From the Baroque period on, royal palaces incorporated enfilades - state rooms would be lined up on one axis while private apartments would be on another. Great houses in England used this floor plan – Chatsworth House and Blenheim Palace are two famous examples.
.
Chatsworth House’s state rooms are lined up on an enfilade, one room flows into the next with their doors placed in a long line. Here you can see from one end of Chatsworth all the way down to its other end.
Blenheim Palace: a long enfilade on the upstairs private bedroom wing.

The 17th century Tsarkoe Selo, an imperial palace in Russia, has a particularly beautiful enfilade due the lavish wall treatments. The Tsarkoe Selo is home to the famous Amber Room.
Maison de George Sand, home of the French author, has an enfilade of rooms.
Palaces traditionally have enfilades on their state floors.
Juan Pablo Molyneux’s house has a gorgeous enfilade of rooms.
A country French house with beautifully carved doors between its rooms.
A modern interpretation of the enfilade by Thad Hayes who used beautiful doors to separate these rooms.

Another new version of the building style in Rosemary Beach – here arches separate the rooms, not doors.
`
David Adler, the famous architect, used enfilades in many of his designs. This lineup of rooms is found in the 1925 Lasker house on Chicago’s North Shore. Again, arches not doors separate the spaces.
Limed wood doors and parquet floors update this house, giving it a more contemporary look.
c

Not France, but America by William T. Baker, thanks to Things That Inspire. I would love to see the plans of this house to see if it is one room deep.
Traditional enfilades are not always fancy or large. The New Orleans “shotgun house” is such an example. Here, in the French Quarter, is a rare but charming shotgun house, so called because a bullet would travel from the front door out to the back.
The shotgun house floor plan is a enfilade – all its doors are lined up. The view at the front door would end at the back yard.
Enfilade is also another name for a buffet with cabinet doors. This 19th century French painted enfilade with original hardware is from M. Naeve in Houston and 1st Dibs HERE.
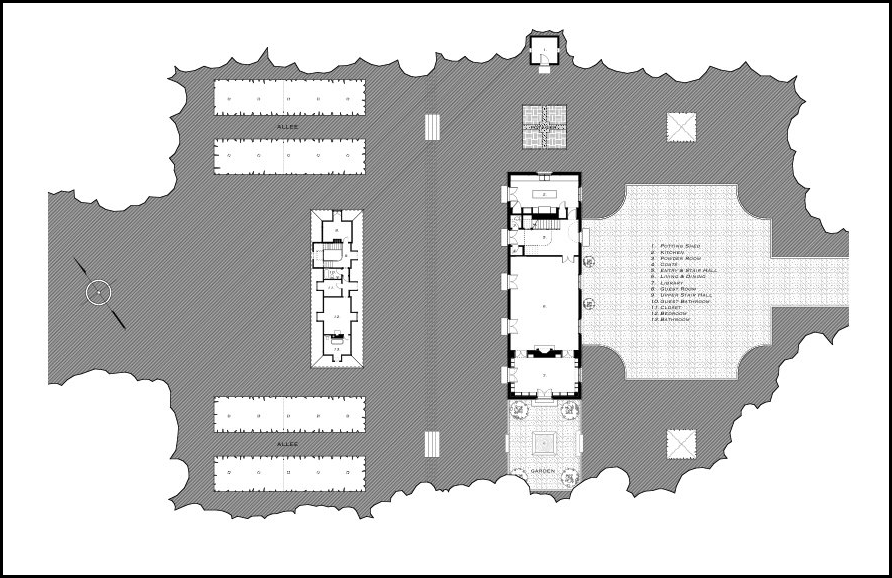
Kay O’Toole’s Floor Plans: Enfilade AND a Lanterne
Looking again at Kay O’Toole’s floor plans, they reveal that besides being an enfilade, the house is also an example of a French Lanterne - meaning, the house is one room deep and the front and back windows are lined up – making the house see-through. This style of house is named after the famous 18th century hunting lodge, the Pavillion de la Lanterne, located in the Versailles Park in France. La Lanterne is considered a most beautiful house and it has been widely copied throughout the years by different architects.





Rare pictures of La Lanterne. You can really see the essence of the see-through aspect of the house from these pictures.

A closer view of the two wings.
Many grand houses were built modeled on the original Pavillion de La Lanterne. Here, in Lake Bluff, the Carolyn Morse Ely house was built by David Adler in 1923. Notice how the screens have marred the beautiful windows! The facade is a faithful adaption of the original Pavillion de la Lanterne with its six windows and center pediment.

The floor plans of the Carolyn Morse Ely house, plainly showing the house to be a Lanterne design with its windows lined up with each other. The center portion of the house is also an enfilade, all the rooms have doors lined up on an axis.
In Newport, Champ Soleil was built, again based on La Lanterne. Things That Inspire took this picture on a tour of the neighborhood. Again, the main section of the house is one room deep, with windows lined up from the front to the back, making the house see through. The gates were recently refurbished at great cost to the homeowners.
An earlier photograph, taken inside the gates show the shutters and front door stained. Champ Soleil is not as faithful a reproduction as the Ely house. The Ely house has six windows flanking the front entrance, exactly like the Pavillion de la Lanterne. Champ Soleil has only one window flanking the front door, instead of three.
This side elevation picture of Champ Soleil dramatically illustrates the one room deep aspect of the Lanterne design.


The architects Bories and Shearron HERE designed a wonderful house based on the ‘see through’ style. Sadly, this house has not yet been built. This plan is not a copy of the Pavillion de la Lanterne, rather it is an interpretation of the style. Notice the front door is not symmetrically placed, instead three windows are to one side of the door, while one is to its right.
And finally, a plat showing the layout of the house and gardens.
Reminder: the new Skirted Roundtable is now online HERE. This week we have as a guest, Jackie Von Tobel, author, interior and fabric designer. Jackie is very inspiring to listen to – I think you will really enjoy hearing how she manages to do it all! We are having a giveaway this week – two people will win one of Jackie’s reference books on bedding and window treatments! Hurry to enter!
So funny you mentioned the shotgun house. That's what drifted into my head as I was reading this wonderful post. Speaking of David Adler, one of my favourite examples of his work is the Crane Estate in Ipswich Mass. An incredible house. You really should visit if you haven't. There's the most delightfully elegant inn right on the estate. The Inn at Castle Hill. Absolutely divine! Go in May, when the lilacs are blooming.
ReplyDeleteI didn't know the definition of enfilade, but was reminded as I read about the various examples of the shotgun houses. Also, I realize our home in the wine country could be an enfilade because the living room, dining room, then the kitchen all line up lengthwise.
ReplyDeleteThanks for a very interesting and informative post.
This was fascinating, Joni. I was neither familiar with enfilades nor lanternes, but both appeal greatly to my Georgian sensibilities. I love pediments too.
ReplyDeleteI have visited Versailles on several occasions but have never seen La Laterne. It is certainly beautiful.
Thank you for continuing to enlighten me and expand my design horizons!
This is a wonderful post - informative and full of beautiful photos. I was fascinated by the explanation of the enfilade concept in palaces, with state rooms being on one axis and private apartments on another. Wandering through Versailles Palace is like this - one room leading to another, with the interior private rooms not accessible.
ReplyDeleteI wish I'd known about La Lanterne when we visited Versailles.
Fascinating!
Another case of serendipity - I was watching the movie "Impromptu", about the meeting and subsequent relationship between George Sand and Chopin, only last night. Your post is its usual joy of information.
ReplyDeleteJoni,
ReplyDeleteThis is one of your gorgeoust post ever!!! You teaches your readers! I love that!
I adore enfilade rooms! That is why I also kept that in mind building our home! When I stand in my kitchen, with open doors, I am able to see the dining room and through the dining way I can see my living room. And when we open our front door, I can see the garden because there is a window just in front of our frontdoor!
Thank you so much for this fantastic explanation of enfilade here and for all these beautiful images! I filed them all I guess. I hope you don't mind!
Have a nice week!
xx
Greet
Very interesting and educational for me as I did not know what an enfilade was.
ReplyDeleteI learn something new each time I read one of your beautiful posts. I also love many of the beautiful wood doors in these photos. Thanks so much for sharing.
ReplyDeleteHi - enfilade is still the typical layout on 2nd floor apartments (US 3rd floor) of Haussmann era buildings here in Paris. The 2nd floor is called the étage noble because it was traditionally inhabited by well-to-do families, and is characterized by higher ceilings, balconies, ornate mouldings, and of course the enfilade floor plan that is the subject of your post! The 2nd floor is usually the most sought after (along with the 5th, which generally has balconies as well) for these very reasons.
ReplyDeleteJoni,
ReplyDeleteYou have out done yourself, gorgeous and informative I want one....wonder about the feng shui though....oh who cares!
hugs Heather
Again, what a fantastic post, informative, beautiful, fascinating. I love the first floor plan. I live in an enfilade house of sorts( restored stables) U shape with enclose courtyard and one room deep (very french...) I love living in that type of architectural space where every room opens to the outdoors, morning light to sunsets stream into the rooms.
ReplyDeleteI really think you need your own chateau on a wine label. Chateau de Cote de Texas.
ReplyDeleteI would illustrate it for you and I know you would have a ton of customers. Whenever I sit down to read your posts, I feel the need for a tall latte, or a lovely glass of french wine. It would be peppery, robust, rich, and lingering.
Can I ask you to send me a copy of "Papercity" - I was mentioned in there from a wedding I illustrated for a Dallas couple. Merci dear!
pve
Wow, Joni! Once again, thank you for a wonderfully informative post. Who needs design school when we can just read your fabulous writings? I always get a little giddy when I see new title from you. :) Thanks again.
ReplyDeleteOne again a Joni post had turned my brain into a happy mush. Sometimes I read the posts from the bottom up. Thanks so much.
ReplyDeleteI am a new reader to your blog and was absolutely blown away by the information. I learned so much! And I appreciate the time and effort required to put this together. All I can say is "wow"!
ReplyDeleteA wonderful post. The "Lanterne" plans are beautiful, provided you have greenery or a pleasant prospect on the opposite side of the building. My Aunt & mother-in-law grew up in Queens and the Bronx, respectively, and have a marked dislike for seeing through to the other side of the house based on their city experiences. They walk in to gorgeous, light-filled houses with garden views and say, "It looks like a railroad flat."
ReplyDeleteJoni-
ReplyDeleteWould you send me your email address? I have a question totally unrelated to this post for you. My email is mandyhill5@hotmail.com. Hope to hear from you soon!
Mandy
Thanks for this wonderful post and the education. The pictures are just delicious.
ReplyDeletePerfection, all!
ReplyDeleteWhat a gorgeous post - right up my alley.
ReplyDeleteWhen speaking with architects around Atlanta about their idea of a perfect house, most of them would say a house that is one room deep. It is so beautiful for the light. Of course, this is the most expensive kind of house to build!
P.S. - the White House public rooms are enfilade style - the East Room, Green Room, Blue Room, Red Room, and State Dining Room are all lined up and connected through a series of doors on axis, across the back of the house. The East Room spans from front to back, whereas the color rooms are only across the back (the State Dining Room and family dining room make up the west side of the space) . I wonder if I have a picture?
ReplyDeletehttp://www.whitehousemuseum.org/Floor1.htm
Joni, such a great array of Enfilade examples. Very informative!!
ReplyDeleteKarena
Another fascinating posting -- and a true education in decor and design too! Gorgeous ideas and homes -- what a delight! Many thanks for your hard work, insight -- and the simple fact that you share your passion with us all! Honestly I can't wait for your postings to be collected into a hardcover book -- you know I'll be first in line at the signing! LOL! (I'll be the one with a flask of martinis ...)
ReplyDeleteJan at Rosemary Cottage
Great examples of enfilades,I liked the variation and have always wondered what the inside of Kay's house was like as I was working next door as it was being built. I love her design..Thanks for an entertaining and enlightening post!Maryanne xo
ReplyDeleteJoni, such a great post,I wish Veranda had put Kay O'Toole's home on the cover-any one of those shots would have been ten times better than the room they selected.
ReplyDeleteThank you for the post this morning, love the interiors as well as the inserted panels of these rooms and there stencils and coverings.
ReplyDeleteJust a big amount of eye candy!
I like candy though, preferably chocolate or anything a little chippy and worn!
L.
Excellent enfilade tutorial, Joni!
ReplyDeleteI must say those New Orleans shotguns are adorable .. . but when you scale down to that size, room opening to room is rather difficult to live in .
Much better to play La Lanterne with
the central courtyard.
Judith
Super post. I have always loved enfilade houses--the light that is brought to play in the rooms is wonderful.
ReplyDeleteI would guess that houses built around a courtyard and one room deep with opposing windows would seem to be a variation on an enfilade. Thanks--have a great week.
Hi, Joni!
ReplyDeleteI'm coming to Houston for a quick trip, and I have a few hours to poke around before my plane leaves. Houston was my home for 8 years, and I have my favorite haunts, but so much has changed since I left five years ago. So my question to you is: what shops would you suggest I visit? Anything new I need to see? Thank you so much if you can help me out with this...filling idle time is wonderful! :)
I'm starting up my blog again--lifestyle through an artist with an emphasis in Atlanta, if I had to sum it up. :) Hopefully I'll be up and running next month. You are an inspiration--eye candy AND education here. I love beauty with brains. :)
Thanks!
Angela
Thanks for clarifying when enfilade is used to describe a buffet with cainet doors...this has always confused me. I think Micheal S. Smith took this approach when he and his architect Oscar Shamamian renovated his California home. He also did it for decorative reasons, so that each room could have a different personality and a different ceiling treatment! Or something along those lines I recall reading. I wish my house was buit this way!
ReplyDeleteI thought I recognized that, Joni. I have been at the Tsarkoe Selo in Russia and it is truly amazing! Beautiful post with lovely pictures!..Christine
ReplyDeleteGreat post, Joni. So informative. I knew some about enfilade, but nothing about lanternes. Beautiful images to illustrate as well. I thought the same as Holly about the White House. Many of the images remind me of it. Thanks as usual for a great read!
ReplyDeleteThanks for the great post Joni! I've looked up "enfilade" before after hearing you mention it, but mostly would just find references to it being a military tactic.
ReplyDeleteAngela, I've put together a list of places I want to check out the next time I'm in Houston, after reading Joni's blog for a few months. I think you'll need at least a week to check all these out though! Here you go:
Chateau Domingue
Area
Thompson + Hanson
Olivine
Vieux Interiors
Indulge
M. Naeve
Antiques and Interiors
Kay O’Toole Antiques and Eccentricities
Memorial Antiques and Interiors
Twenty Six Twenty
The Fabulous Flea
Found for the Home
Joyce Horn Antiques
Watkins Culver Antiques
Neal & Co.
Mary
As always Ms. Texas, you have shared some incredible images. I too had no idea that there was a specific term for rooms aligned so perfectly. Would be great for overnight guest bowling! I gest!
ReplyDeleteThanks for sharing your brilliant eye.
Best regards,
Reynolds Still
Little did I know on this grey and snowy day that a light would shine by way of your post and fill my computer screen with the most beautiful of rooms and a lesson in the bargain. I promptly forwarded your post on to friends who were also bogged down with snow and all agree on what fun it was to learn what an enfilade was and that we had been seeing it all along in our travels.
ReplyDeleteThank you.
Little did I know on this grey and snowy day that a light would shine by way of your post and fill my computer screen with the most beautiful of rooms and a lesson in the bargain. I promptly forwarded your post on to friends who were also bogged down with snow and all agree on what fun it was to learn what an enfilade was and that we had been seeing it all along in our travels.
ReplyDeleteThank you.
I loved the post. Glad you liked hearing about Peacock design. You can catch her at Roundtop.
ReplyDeletelove you,
nancy
What a fabulous blog you have!!!
ReplyDeleteHi Joni: Thank you for your kind word...you have no idea how it means the world to me, as until i started blogging ,I have quite reserved about my work and myself. To answer your question, no I have not put anything on my house on the blog, however I will look for some magazines photos where it has been published and will work on it... Best, Francine
ReplyDeleteWhat are the odds? I posted this week on enfilades! Such a great theme.
ReplyDeleteas always..... BRAVO. you are a rockstar! xx
ReplyDeleteThe Pope's bedroom and private areas in the Vatican are also an example of the Enfilade. Visiting Tsarkoe Selo in the 80's we had to don painters slippers to protect the beautiful wood floors. Your post brings back memories. I believe the Z"s (privacy) home on Inverness in Houston is a fabulous example of both the Enfilade and Lanterne style. All limestone clad it is a Masterpiece of true French design.
ReplyDeleteThank you for a wonderful blog post! Reading your blog is one
ReplyDeleteof the highlights of my day!
Barbara
What a wonderfully researched post, Joni! I went to Blenheim a few years ago and I loved it -- but I never connected the dots between a palace like Blenheim and a simple shotgun house! What's great about an enfilade is that you eliminate the need for hallways (great for small homes like a shotgun) but you're still making a feature of the doors (great for stately homes like Blenheim).
ReplyDeleteIt was great to meet you on Saturday, by the way!
-Averill
Guess who just happily learned an awful lot today....ME!
ReplyDeleteThank you.
Sue
Wonderful interesting post. What an hard work to fid all these documents. Thank you for teaching us. I love enfilade rooms...
ReplyDeleteWonderful interesting post. What an hard work to fid all these documents. Thank you for teaching us. I love enfilade rooms...
ReplyDeleteYour post reads like a history lesson, thank you ;) It was very interesting.. I have always liked the fact of my own little place where I can see from the front door right throught the halway to the end of the living room where there is a south faced window with a tree in front.
ReplyDeleteWonderful post. Symmetry, enfilades, can't get enough.
ReplyDeleteAnd La Lanterne, so superb, as is the Ely House.
Champs Soleil at Newport is actually modeled after another French manor house, not La Lanterne. Name escapes me at the moment, but it inspired almost as many copies as La Lantern.
HOWEVER, there is a copy of La Lantern, in Newport, in white out on Harrison avenue across from the gates to the Country Club.
Joni, you're a gem! I can't believe the amount of work and knowledge that go into each of your posts. Never stop! I'm addicted. All so lovely.
ReplyDeleteEnfilades and lanterns? Two of my favorite things! We had the pleasure to work on a home recently with a 150 foot enfilade that ran though the first floor and the spaces along that axis automatically felt grand and glamorous!
ReplyDeleteYears ago while living in Houston, I stood with Kay in her parking lot talking about her plans and dreams of this house. I am so glad to see she did it and so glad to see your amazing article with all the research is truly impressive. I miss all the Houston girls. Kay is the best, I think I miss her the most. Please tell her Kevin says hello.
ReplyDeletedear joni... i am sure you have a few of these but you deserve this one... from me. you are amazing, sweet, kind, giving and sooooo funny... you are such a bright spot in my life and so many others... please go claim your award over at my post today... xoxoxo
ReplyDeleteWow, you learn something new every day when you read Cote de Texas. Just yesterday, I was thinking how I love how the doors line up from back to front of my house, and that when I stand at the back door I can see all the way through to the front porch (but lamenting that the last thing you see is a light fixture that I hate, but can't yet afford the light I've picked to replace it with). I didn't know this had a name!
ReplyDeleteJeannie
I learned something here today. I knew I loved homes built like this, but did not know there was a word for them. I love one room deep rooms where the light can come from both sides! I love to be in one room and look into others... I designed my own home and I have that in the family room, kitchen and dining room. You can also walk into the front door and go straight out the back door, no wall between the dining room and the living room , allowing light to come in from both sides. Now, I can pretend all these things were done with a purpose, instead of a 22 year old that got lucky! Thanks
ReplyDeleteWOW Joni…Thank you so much for yet another fabulous as well as informative post! These homes are to die for and I’m wondering if Kay O’Toole would like a servant…lol. I just love all of her mannequins, Santos and statues they really add a lot of decorative flair, not to mention those amazing antique paintings…OMG! Thank you, thank you, thank you!
ReplyDeleteDebra,
being one who constructed a Potager, so I can admire it all through the year, from above, from my kitchen window and 2nd story, I loved this post....structure is so key....but doesn't have to be so formal....but to me, it's essential! with everything (lol)
ReplyDeletegreat post!
Dear Joni, sorry to leave tghis as a comment - I can't find an email address. Just wanted to let you knwo that I've left you an award at my place and hope that you don't mind my doing so without warning - just thought some of my English readers would be fascinated by your amazing and informative blog.
ReplyDeleteWarm regarde
ELS
Hi Joni,
ReplyDeleteJust getting to read this post - amazing! Thank you for your research, that allows us all to learn something. Beautiful photos and floor plans too. Well done!
Kindest regards,
Poncie
thank you for the opportunity to escape today through these pictures! great post. and i love love love Thad Hayes design!
ReplyDeletei love enfilades - my favorite is at Castletown House in County Kildare, Ireland. They have images and plans on their website, its worth a visit online and in person if you ever get the chance. http://www.castletownhouse.ie/
ReplyDeletei am sorry, i do not know why that posted 3 times
ReplyDeleteWhat a wonderfully researched post. Thank you, Joni, for sharing all of this work and for inspiring me to build an enfilade myself - once I find that magic money tree, of course...
ReplyDeletexo
A fascinating post - I always learn so much from you!
ReplyDeleteI have a hard time deciding if I would like a house like that - would need to walk through, but they are visually wonderful, and give two sides of light, as Holly (and I) love (and likely everyone)!
Fascinating! xo Terri
Hi Joni,
ReplyDeleteI have read and loved your blog for several years. You have inspired me to begin my own blog. I would love to have you look at my blog. You are mentioned in my first blog entry!
Please take a look http://colorandlightatelier.blogspot.com/
Would love your thoughts!
Best,
Melissa Rakowki
Joni please go to your twitter account asap, it has been hacked!
ReplyDeleteSorry i can't find you email address to go directly to you.
Joni,
ReplyDeleteI just learn so much from your post! I realized that I have somewhat of an enfilade becasue when you open my front door you see straight through the room through the doors to the patio, the patio, and the door from the master bedroom. I've been having trouble decorating my bedroom because you can see straight through and see that I don't make my bed every day! Of course I love to leave the curtains drawn because I love the light. Now I know how to rearrange my bedroom so that you don't see the bedroom. Instead!!! You will see my french armoire straight through from the front door!! I'm so excited. It makes sense.
Thanks,
Nora
This comment has been removed by the author.
ReplyDeleteThe beautiful David Adler house "The Carolyn Morse Ely" is in my town and I recently helped to decorate it.(the original decorator was Francis Elkins) It is fabulous, but sadly one of the wings was removed during the 50's and moved to another location. So, the house no longer has the perfect symmetry that Adler was known for.
ReplyDeleteGreat Blog Posting!
Joni- Just wanted to let you know- it looks like spammers got to your twitter account. You should change your password as soon as possible-- they are sending posts that are definitely not from you!
ReplyDeleteWow! I love this post. I learned a lot. It's cracking me up to realize that my plain, suburban tract home was enfilade.
ReplyDeleteStill waiting with anticipation for the completion of Top Ten Design Elements....think there r 4 more. When will you cote de texas be doing that?
ReplyDeleteJoni, I live in West U, too! I was just web surfing, stumbled across your blog and within a few lines saw the West U references. Your blog looks fabulous so far. I have a lot to catch up on!
ReplyDeleteI need to have new slipcovers made for my sofa and two arm chairs. Do you recommend anyone? I have heard of Hien Lam, Shabby Slips, and Custom Creations. Do you have a favorite?
Hugs!
It seems when I first started reading your blog there would be a new post every few days. Lately the new posts don't come as often. I miss your musings.
ReplyDeleteanime orgasm [url=http://usadrugstoretoday.com/products/imodium.htm]imodium[/url] proteins in blood plasma http://usadrugstoretoday.com/categories/smettere-di-fumare.htm teflon pearls drug http://usadrugstoretoday.com/index.php?lng=fr&cv=eu
ReplyDeletemuscle men in gym [url=http://usadrugstoretoday.com/categories/antibiotics.htm]antibiotics[/url] normal range for diabetic [url=http://usadrugstoretoday.com/products/bactrim.htm]valvular heart disease[/url]
http://meen.in/cefdinir/cefdinir-bactrim
ReplyDelete[url=http://meen.in/clomiphene]triple x drug[/url] online pharmacy direct scripts [url=http://meen.in/cipro/cipro-750]cipro 750[/url]
annabelle drug addict alcoholic http://meen.in/flutamide/flutamide-hair-loss
[url=http://meen.in/clomid/clomid-arimidex-combination]high pharmacy[/url] village pharmacy in amarillo texas [url=http://meen.in/celecoxib/celebrex-celecoxib-http-wwwfdagov-cder-drug-infopage]celebrex celecoxib http wwwfdagov cder drug infopage[/url]
stop acne drugstore treatments http://meen.in/celebrex/celebrex-contraindication-drug-interaction
[url=http://meen.in/ethinyl-estradiol/contraception-norethindrone-ethinyl-estradiol]intervention drug do it yourself[/url] fentenel pain drug [url=http://meen.in/carbohydrates/do-carbohydrates-cause-cancer]do carbohydrates cause cancer[/url] date rape drug pamphlet [url=http://meen.in/ezetimibe]ezetimibe[/url]
samsonite small deluxe pop up travel cot http://greatadventures.in/airline sears car travel insurance
ReplyDelete[url=http://greatadventures.in/adventure/adventure-kingdom-lumberton-texas]travel inn chester[/url] capless travel drive [url=http://greatadventures.in/expedia/john-sullivan-expedia]john sullivan expedia[/url]
st cloud travel bus http://greatadventures.in/tours/dash-tours-branson
[url=http://greatadventures.in/maps/how-to-teach-prepositions-using-maps]travel by train mexico[/url] cheapest travel to key west [url=http://greatadventures.in/map/washington-dc-zoo-map]washington dc zoo map[/url]
free travel brochure new york http://greatadventures.in/vacation-packages/riu-palace-vacation-package-mexico adventure travel south america [url=http://greatadventures.in/adventure/adventure-holidays-in-british-columbia]adventure holidays in british columbia[/url]
magna high fashion bicycle http://topcitystyle.com/la-martina-t-shirts-for-men-brand27.html rocket dog shoes for women [url=http://topcitystyle.com/yellow-on-sale-color44.html]babes take off their clothes[/url] womens casual shoes
ReplyDeletehttp://topcitystyle.com/sky-blue-women-color96.html working conditions for being a fashion designer [url=http://topcitystyle.com/pink-t-shirts-for-men-color10.html]rico puhlmann a fashion legacy[/url]
ralph lauren seychelles http://topcitystyle.com/just-cavalli-tank-top-for-women-black-item2371.html crazy clothes [url=http://topcitystyle.com/green-white-casual-tops-color184.html]boarding school fashion design[/url] travel ready clothes
ReplyDeletehttp://topcitystyle.com/s-sport-size10.html discount basketball shoes [url=http://topcitystyle.com/beige-tops-shirts-with-colar-color5.html]seersucker clothes[/url]
celebrity movie arcive [url=http://full-length-movies.com/dvd-quality-movie-bratz-genie-magic/7460database/]Bratz Genie Magic[/url] jamie lynn discala movie quotes [url=http://worldmovs.co.cc/full_version-pesadilla-en-elm-street-2/22692database/]Pesadilla En Elm Street 2[/url]
ReplyDeletemovie being filmed in macedonia [url=http://full-length-movies.com/dvd-quality-movie-luther/15406database/]Luther[/url] windows movie maker software download [url=http://worldmovs.co.cc/full_version-cult-the-satanic-rites-of-dracula/9556database/]Cult The Satanic Rites Of Dracula[/url]
horror movie the tomb avi [url=http://full-length-movies.com/dvd-quality-movie-a-bloody-spear-on-mount-fuji/30025database/]A Bloody Spear On Mount Fuji[/url] play home movie on vcr [url=http://worldmovs.co.cc/full_version-the-hottie-and-the-nottie/361database/]The Hottie And The Nottie[/url]
movie theme song mp3 free [url=http://worldmovs.co.cc/full_version-men-in-white/22277database/]Men In White[/url] the killing fields movie [url=http://full-length-movies.com/dvd-quality-movie-armitage-iii-ova-1-4/19328database/]Armitage III OVA 1-4[/url]
geraldine laurent http://luxefashion.us/grey-pink-leather-bags-tote-purses-color129.html dr martin shoes [url=http://luxefashion.us/black-grey-green-pullover-color230.html]bacteria in insole of shoes[/url] dr eric kleinstein
ReplyDeletehttp://luxefashion.us/brown-and-grey-men-color151.html teaching kids to tie their shoes [url=http://luxefashion.us/takeshy-kurosawa-shirts-brand9.html]san francisco shoestring[/url]
fake chanel purse http://www.thefashionhouse.us/white-yellow-color207.html fashion job dallas [url=http://www.thefashionhouse.us/black-multicolored-evening-cocktail-color63.html]designer blouses[/url] gucci handbag
ReplyDeletehttp://www.thefashionhouse.us/vae-victis-polo-shirts-brand47.html womens shoes [url=http://www.thefashionhouse.us/roberto-cavalli-tunic-for-women-black-item1645.html]clothes storage bins[/url]
yogurt and yeast infection [url=http://usadrugstoretoday.com/categories/anti-depressant-anti-anxiety.htm]anti depressant anti anxiety[/url] alternative medicine for arthritis http://usadrugstoretoday.com/products/urispas.htm
ReplyDeleteadolescent american depression journal psychiatry [url=http://usadrugstoretoday.com/products/dostinex.htm]dostinex[/url] guaranteed penis enlargements [url=http://usadrugstoretoday.com/products/eulexin.htm ]cocaine causes hair loss [/url] georgia dhr public health whitfield
military medical severance formula [url=http://usadrugstoretoday.com/categories/perte-de-poids.htm]perte de poids[/url] middle schools for people who have depression http://usadrugstoretoday.com/categories/la-sante-des-os.htm
how long does a normal erection last [url=http://usadrugstoretoday.com/products/zelnorm.htm]zelnorm[/url] low carbohydrate breakfast foods [url=http://usadrugstoretoday.com/categories/anti-champignons.htm ]symptons of genital herpes [/url] dosage of amoxicillin for infants
electric penis torture [url=http://usadrugstoretoday.com/categories/anti-depressant-anti-anxiety.htm]anti depressant anti anxiety[/url] sibilation blood gases nasal cannula results http://usadrugstoretoday.com/categories/anti-depresseur---anti-anxiety.htm
ReplyDeletemedical wrist brace glen burnie md [url=http://usadrugstoretoday.com/products/maxaman.htm]maxaman[/url] eye muscle training vhs [url=http://usadrugstoretoday.com/products/anafranil.htm ]algodones tlc dental [/url] natural medicine basel
song cold cold heart [url=http://usadrugstoretoday.com/categories/sante-generale.htm]sante generale[/url] b rock hard muscle http://usadrugstoretoday.com/products/diflucan.htm
tinkerbell medical scrubs [url=http://usadrugstoretoday.com/catalogue/h.htm]No prescription online pharmacy[/url] drug arrest university of maryland [url=http://usadrugstoretoday.com/catalogue/1.htm ]pa medical assistance income limits [/url] uniform electronic transactions act medical consent
sure fit shoes http://luxefashion.us/gucci-dresses-brand12.html narrow shoes for women [url=http://luxefashion.us/black-grey-tops-shirts-with-colar-color24.html]fashion indian photographer[/url] apparel offer shoes accessories product applies outerwear painting orders keys
ReplyDeletehttp://luxefashion.us/90-men-size54.html womens clothes shops online [url=http://luxefashion.us/white-multi-gucci-color106.html]design your own basketball shoes[/url]
blackjack online practice http://xwn.in/blackjack_ken-houston-blackjack bingo dauber
ReplyDelete[url=http://xwn.in/jokers_jokers-wild-paper]keno tips[/url] instant no deposit casinos [url=http://xwn.in/slot_skeleton-slot-measurements]skeleton slot measurements[/url]
new show about the lottery http://xwn.in/poker-online_strip-video-poker
[url=http://xwn.in/lottery_monthly-lottery-calendars]hispanic lottery[/url] finley firehouse bingo southern indiana [url=http://xwn.in/casino-online_casche-creek-casino]casche creek casino[/url]
nceducaation lottery http://xwn.in/online-casino_mount-airy-casino-opening-date-oct-18 real deal casino downloadd [url=http://xwn.in/casino-playing-cards_playing-cards-bmp]playing cards bmp[/url]
best casino blackjack http://wqm.in/online-casino_blackjack-free-casino-online lottery payoffs
ReplyDelete[url=http://wqm.in/jackpot_power-ball-jackpot-winning-numbers]lottery round bidding realestate[/url] ms word lotto lottery [url=http://wqm.in/bingo_bingo-laug]bingo laug[/url]
free jokers wild poker http://wqm.in/roulette_roulette-set-game
[url=http://wqm.in/bingo_where-to-buy-christmas-bingo]gambling casino etiquette tipping[/url] casino oklahoma [url=http://wqm.in/jackpot_pepsi-cola-jackpot]pepsi cola jackpot[/url]
florida land casino http://wqm.in/slots_fta-satellite-orbital-slots blackjack zero [url=http://wqm.in/roulette_casino-carribean-poker-roulette-craps-games-online-htm]casino carribean poker roulette craps games online htm[/url]
gay porno movie video [url=http://moviestrawberry.com/films/film_butterfly_on_a_wheel/]butterfly on a wheel[/url] indiana jones movie http://moviestrawberry.com/films/film_ciao_manhattan/ russell crowe new movie
ReplyDeleteactors from the movie whats the worst that can happen [url=http://moviestrawberry.com/films/film_ocean_girl/]ocean girl[/url] movie the brothers karamozov http://moviestrawberry.com/films/film_arte_de_roubar/ death at a funeral the movie
simpatico movie [url=http://moviestrawberry.com/films/film_the_volunteer_worker/]the volunteer worker[/url] analysis of the movie crash
tv movie extras [url=http://moviestrawberry.com/films/film_robots/]robots[/url] movie reviews by guys http://moviestrawberry.com/films/film_cat_nap_pluto/ movie theaters in portsmouth nh
free clips from the movie crash [url=http://moviestrawberry.com/films/film_lady_in_the_water/]lady in the water[/url] auditioning for movie roles http://moviestrawberry.com/films/film_johnny_was/ jeff bridges movie spiders
funny movie [url=http://moviestrawberry.com/films/film_the_9_11_commission_report/]the 9 11 commission report[/url] movie strrat times http://moviestrawberry.com/films/film_gone_with_the_wind/ old movie starter
ReplyDeleteunited artists movie theaters [url=http://moviestrawberry.com/films/film_the_plot_to_kill_hitler/]the plot to kill hitler[/url] vanishing point movie message analysis http://moviestrawberry.com/films/film_american_gun/ george clooney movie michael
hindi movie song notes [url=http://moviestrawberry.com/films/film_super_size_me/]super size me[/url] new movie war
zeigtfest the movie [url=http://moviestrawberry.com/films/film_the_blue_butterfly/]the blue butterfly[/url] movie shareware http://moviestrawberry.com/hqmoviesbycountry/country_usa/?page=28 movie beny more
oh christmas tree movie animated [url=http://moviestrawberry.com/films/film_payback/]payback[/url] beyblade movie http://moviestrawberry.com/films/film_unhook_the_stars/ full length movie database
a night in paris movie download [url=http://moviestrawberry.com/films/film_friends_70/]friends 70[/url] the movie dirty dancing filmed at http://moviestrawberry.com/films/film_stagecoach/ blue the porn movie
ReplyDeletefull movie downloads for psp [url=http://moviestrawberry.com/films/film_washington_heights/]washington heights[/url] scary movie 3 trailer http://moviestrawberry.com/hqmoviesbycountry/country_usa/?page=82 movie clips of unfaithful diane lane
movie plot spoilers [url=http://moviestrawberry.com/films/film_killing_me_softly_2002/]killing me softly 2002[/url] movie fallen
war movie [url=http://moviestrawberry.com/films/film_the_living_sea/]the living sea[/url] elvis presley movie titles http://moviestrawberry.com/films/film_figaro_and_frankie/ theater movie releases
jail movie [url=http://moviestrawberry.com/films/film_uncommon_valor/]uncommon valor[/url] tamil movie online http://moviestrawberry.com/films/film_george_carlin_carlin_on_campus/ movie actor info
what company does movie trailer checks [url=http://moviestrawberry.com/films/film_a_cowboy_needs_a_horse/]a cowboy needs a horse[/url] address of hindi movie producers http://moviestrawberry.com/films/film_from_noon_till_three/ back up movie dvds
ReplyDeletedude wheres my car movie wavs [url=http://moviestrawberry.com/films/film_wimbledon/]wimbledon[/url] apple movie http://moviestrawberry.com/films/film_mission_impossible_ii/ fraternity and college movie animal house based
vids vids vids porn movie gallery [url=http://moviestrawberry.com/films/film_paparazzi/]paparazzi[/url] saginaw the quad movie times
training day movie [url=http://moviestrawberry.com/films/film_bonneville/]bonneville[/url] online bootleg movie of black snake moans http://moviestrawberry.com/films/film_shooter_70/ hamptons international movie festival
burlington movie theater [url=http://moviestrawberry.com/films/film_sonic_underground/]sonic underground[/url] movie extra new jersey http://moviestrawberry.com/films/film_washington_heights/ sims final movie
movie titles nightmare [url=http://moviestrawberry.com/films/film_moonlight/]moonlight[/url] charlotte nc movie theatres http://moviestrawberry.com/hqmoviesbyyear/year_2006_high-quality-movies/?page=13 hot fuzz movie myspace layouts
ReplyDeletehoffman movie dentist runner [url=http://moviestrawberry.com/films/film_the_farmer_wants_a_wife/]the farmer wants a wife[/url] hillary swank movie http://moviestrawberry.com/films/film_the_decoy/ movie sex scene clip
italy movie [url=http://moviestrawberry.com/films/film_beezy_bear/]beezy bear[/url] erotic movie
movie poster icons [url=http://moviestrawberry.com/films/film_george_carlin_it_s_bad_for_ya/]george carlin it s bad for ya[/url] sublime directory jennifer love hewitt movie http://moviestrawberry.com/films/film_caesar_and_cleopatra/ new zealand movie blue
apocalypto full movie [url=http://moviestrawberry.com/films/film_he_s_just_not_that_into_you/]he s just not that into you[/url] good luck chuck movie trailer http://moviestrawberry.com/films/film_firestarter/ movie theatres in portland maine
alein secretes movie [url=http://moviestrawberry.com/films/film_cool_money/]cool money[/url] feel the noise movie http://moviestrawberry.com/films/film_drip_dippy_donald/ movie clips nude
ReplyDeletehandjob movie free [url=http://moviestrawberry.com/films/film_hot_rod/]hot rod[/url] teagan free movie http://moviestrawberry.com/films/film_the_water_front/ movie crank ringtone
aqua teen movie torrent [url=http://moviestrawberry.com/films/film_life_in_the_undergrowth/]life in the undergrowth[/url] pool sex movie
cfnm movie clips [url=http://moviestrawberry.com/films/film_inside_man/]inside man[/url] grey fries bobbie the movie http://moviestrawberry.com/hqmoviesbygenres/download-genre_crime-movies/?page=12 movie teacher
feel the noise movie [url=http://moviestrawberry.com/films/film_wwe_hall_of_fame/]wwe hall of fame[/url] printable horror movie games http://moviestrawberry.com/films/film_jeff_dunham_arguing_with_myself/ female ejaculation movie free
inspirational music for cancer patients [url=http://mp3-s.co.uk/all_music-balla-et-ses-balladins-153430-1/]Balla ET Ses Balladins[/url] name of the western showdown music http://mp3-s.co.uk/all_music-anathema-31-1/ downloading free listen music without
ReplyDeletecynthia clawson music [url=http://mp3-s.co.uk/all_music-chevy-one-5286-1/]Chevy One[/url] music on mike and the mad dog http://mp3-s.co.uk/all_music-orgone-5-1/ music last played on spider harrison
fee mp3 music downloads [url=http://mp3-s.co.uk/all_music-madteo-151685-1/]Madteo[/url] skinhead music videos for download
where to buy music cd [url=http://mp3-s.co.uk/all_music-rumpshaker-14009-1/]Rumpshaker[/url] swing music radio channels online http://mp3-s.co.uk/all_music-somnambul-23-1/ sheet music player
theelders irish music [url=http://mp3-s.co.uk/all_music-tim-skinner-1567-1/]Tim Skinner[/url] music apparel clothing http://mp3-s.co.uk/all_music-technical-itch-34-1/ until your love comes back around sheet music
знакомства екатеринбург серьезные отношения знакомства нальчик кбр знакомства город буй волгодонск секс знакомства казань знакомства девушки украина знакомства новые санжары знакомства в онлайн камере интим знакомства петропавловск казахстан геи знакомства сургут фото знакомстваомск
ReplyDeleteContinue this terrific content, added to my firefox feed.
ReplyDeleteTechnically speaking, only the living room and kitchen in Kay O'Toole's house is enfilade ... the rest is connected by a hallway. But the arrangement of the rooms is really elegant. Thanks for this :)
ReplyDeleteclub poker online
ReplyDeletedownload idn poker ios
sbobet indonesia
game tembak ikan